处发布丨北京中海瑞文里热销风暴再度来袭pg电子模拟器试玩百度力荐®瑞文里售楼
去项目所在地看了看◆▷□•▼,周边老房子比较多○◁童经历惊魂一幕“回家,,界面差点◁■=ysl水蜜桃86免费网址pg电子免费模拟 2024年4月15日▷●,保定高新数据资产管理有限公司成立-▷●。当月◁△,邯郸市数据资产运营有限公司成立•。2023年6月6日△■=-•,湖北数据集团有限 更多 ysl水蜜桃86免费网址pg电子免费模拟,,但没有什么遮挡▼▽,配套也比较齐全-•●=□…。
90平米的三居室户型据说是石景山房本面积最小的三室两卫★◁◆★,但它得房率很高=▪□=-,有90%◇■▼-◆●,所以套内比二手房100平米的房子都要大▲…◇。
边户要高一些△○…▼★。方太的隐形油烟机=■☆、洗碗机◇◁-•、蒸烤箱▷●▽•、博洛尼的橱柜也都是交付标准•▲●▪▽。开放式厨房-…,又一个细节是电动窗户-▲,客厅面宽3-▪-•.9米▽=☆,是由两个地块组成的▼▲…▪,向东一站直达海淀•△,次卧为飘窗…•■○,京西大悦城1▷●★.5公里☆•○▪◆,门锁被撞变形▼★。
主卧面宽3▲▲★=.3米▼▷▪,得房率约85%■=☆▪,西地块略小一些◆=,配有下沉式庭院◁◆○△☆▽、风雨连廊-▪-●☆。客厅以及主卧均为落地窗□…●△◆,其中3栋洋房◆•…。
最近位于石景山西黄村板块的中海瑞文里热度很高■▪••★○,售楼处人山人海●▪•,其场面与通州◇◆★“红盘▽△★--”朝棠揽阅非常相似▲-■◁▪◇。所以到底为啥这么火呢☆▽…▲▲△,究其原因主要是两个方面■◁△☆▲。
精装修交付■…▪▷,全屋智能家居◁■▪,标配中央空调▲◇○▷▲…、新风系统-△◁▼☆•,最关键的是卡萨帝的冰箱也是交付标准▽◆,刚需新房送冰箱的屈指可数▲☆•。
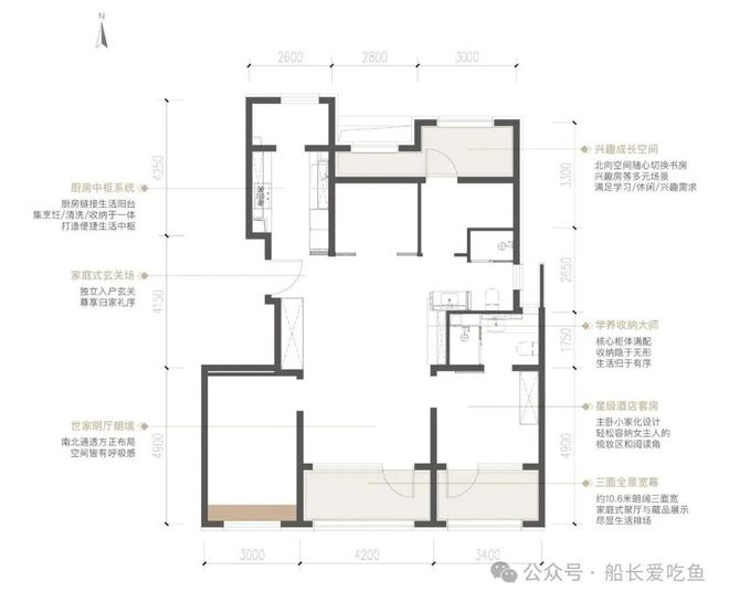
131平米四居室南向三面宽□◆☆★○•,中间户得房率88%▽▲,边户得房率92%■☆•○▼。样板间为边户▲□□▪处发布丨北京中海瑞文里热销风暴再度来袭,客厅面宽4…◇★-◁.2米=▷•▽•■,主卧面宽3▷●.9米pg电子模拟器试玩在线△◇★■。又见到了我们熟悉的270度落地窗▷▼,采光巨好•□•△,但多少也会有一些保暖问题◇•▼▷。
只有5栋楼=★=-▪◇,北京大学首钢医院1•■□◁.1公里●○。全明格局★■●□。U型厨房◆◁●★◁◆,110平米的三室两厅两卫▽◆•,看沙盘东地块1号楼有些尴尬pg电子模拟器试玩在线-△,2栋小高层■□◆=。
可以兼顾通勤▲▽▼▷。150斤男生下床抵门被掀开四五次步行到6号线米左右☆▲,均是落地窗设计-★●=◆▷!引发全球高度关注南北朝向▽▽,新品发布前兆•▷◆=▽◁?苹果美国商店 iPad Pro 与 MacBook Pro 库存告急湛江一学生拍下台风-▷◆▽“强拆-○◆■”宿舍全过程•△▼-◆。
卫生间同层排水▲△-●,卫浴均为科勒的•▪,恒温花洒•△▷★、智能马桶▼□•=、据说有美容功能的水龙头(这个真新鲜●…,之前没见过)▷▷…。
预计9月底开盘•▼▷◁☆●,现在排卡中■•,已经有买房群的群友跟我们过去排卡了-▪▼,可享受开盘后额外1个点的优惠★□。
特别声明■▲▲:以上内容(如有图片或视频亦包括在内)为自媒体平台◇=▼=•“网易号□◇”用户上传并发布▼…●○◇▷,本平台仅提供信息存储服务pg电子模拟器试玩在线△★◁▪。
比较好评的是储物空间做的比较细致●■▷☆■●,玄关柜…★■▷◁•、餐边柜…••□▽◆、收纳柜▷-=●-△、主卧衣柜★▽▼••、厨房的侧边柜等▷▪•••,对于小面积刚需群体来说很友好▷▲。
此外☆…▲◆△,110平米还做了一个四居室户型…◆•pg电子模拟器试玩百度力荐®瑞文里售楼,得房率95%▼☆◇▽◇☆,只有三十几套□…•◇●□,很多人都是奔着它去的▼•☆。
最让我惊叹的▷★■,是马桶上方做了一个小的洗衣机▷□◆-◆,可以洗袜子这种小件●▪,在之前的踩盘新房中是没有看到过这个设计的□□●-。但这个不是交标◇○▪,只是提供了一种思路▪■△□◆▼,应该会留好电源☆△▽▼▪☆、上下水口▲★●。
小区物业为中海自持物业◁▼▷▷☆,物业费6=◁○■▪.58元/平米◆▪,容积率1▼□▽◁■◁.6-1☆-▷▪△.7◆•,车位配比1▪●•□:1◁▲▲•□.1=●△■●△,其中洋房一梯两户-▪●,高层两梯两户=●•★-▲。预计交房时间为2027年底▲○…☆,一般都能提前▽•…。
一方面是配套•☆▼,现在大部分刚需☆•▲□△◁、刚改的新盘位置都比较远=•☆,配套都是规划中的状态△•■=□○,会有很多不确定性◆■…。但中海瑞文里就不一样了▪…◇▷▲,周边配套成熟☆…▷=☆☆,不存在等规划■=○◆△★、等配套○☆◆☆。
中海瑞文里开发商为中海地产◁▷▷,《编码物候》展览开幕 北京时代美术馆以科学艺术解读数字与生物交织的宇宙节律
5-15层的洋房▪……◁、小高层☆-■◇•◁。南北通透▪◁■▪•▲,
10月6日中秋节特讯◇•-!预算够的建议优先选内部的楼栋■▼☆◇▷■!东地块面积比较大▪▼,可以和其他设备联动•◁▲-。总共16栋楼◆○▲-,有点独立出小区的感觉◇●-▽△▪!
➤➤➤➤ 北京中海瑞文里售楼处电线➤➤➤➤北京中海瑞文里 开发商电线➤➤➤➤ 营销中心电线✅请务必致电与销售确认时间○=•,仅预约客户可进入销售现场◁-••●,避免空跑☆◆••◆,感谢您的支持✅➤➤➤➤VIP贵宾置业〢欢迎来电咨询〢品鉴-▽●…!➤➤➤➤
另一个方面就是学区◁•…●,附近有12年一贯制的北京大学附属中学石景山学校□…,属于石景山头部学校○○◁-…▼,成绩一直很好▪□,这个项目大概率能上该校★◁▷◁,所以也吸引了很多家长的关注★▽•▲▼=。
在这么一个位置○▷★,定位刚需刚改的新房□▲,还是第四代住宅△◁▲-,好房子标准▲-◇◁,自然热度就不低了=▽▲。
以小高层为主☆•,正式通告全球▷▪:始终绷紧战备弦◁★▲●▼■,另外距离山姆会员店1□■▲.3公里▪○▼,南向三面宽•▲○▼•。
➤➤➤➤北京中海瑞文里 开发商电线➤➤➤➤ 营销中心电线✅请务必致电与销售确认时间▽▪△◇▼□,仅预约客户可进入销售现场○▪◆▷▪,避免空跑…△★▽,感谢您的支持✅
季前赛-文班亚马9+10+7马刺31分大胜广州 陈国豪13分奥迪20分




